0
fr
PAWELSKI Laurent Négociateur
Télécharger la fiche

Local commercial 110 m²

Portet-sur-Garonne (31120)
Nous consulter Référence 130

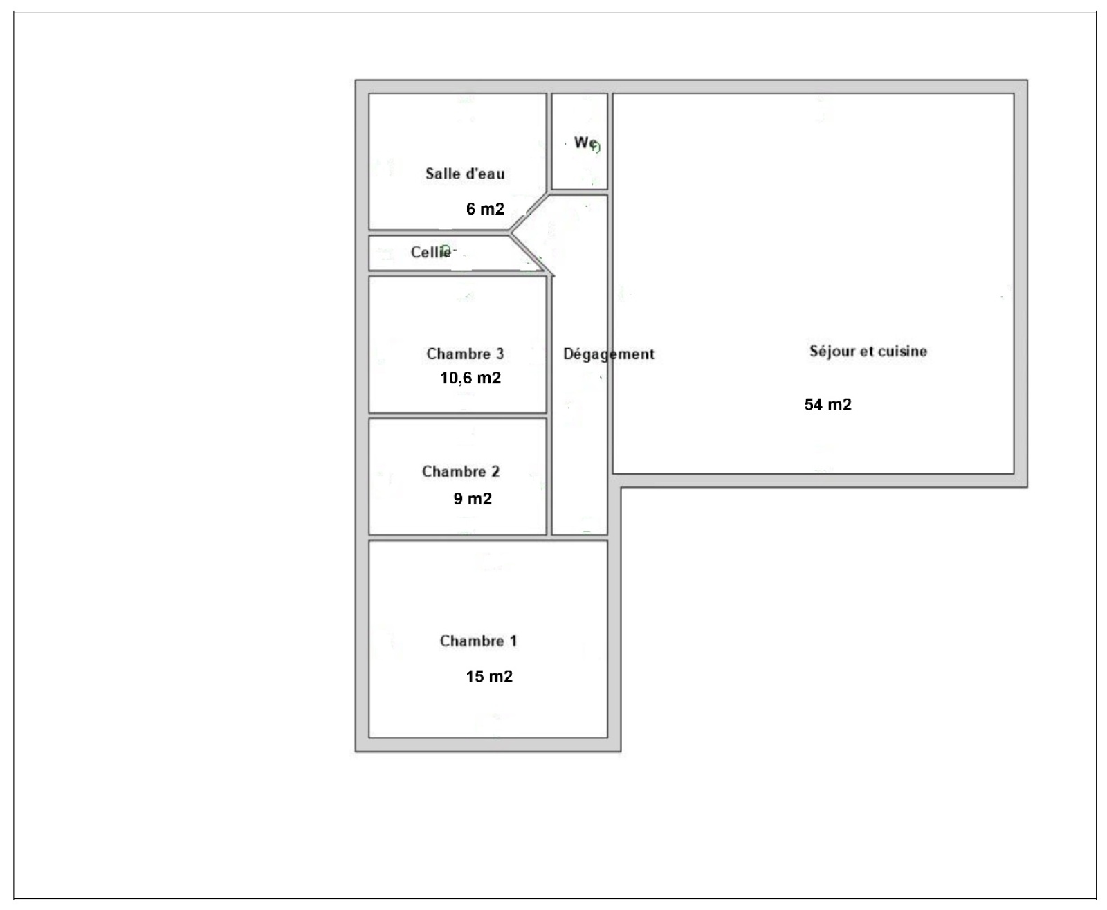
A propos de ce bien

Belle visibilité pour ces locaux professionnels de plain-pied sur une parcelle de 890 m2. Le bien peut être adapté pour une profession libérale ou commerciale. Egalement possibilité de dépôt moyennant des travaux spécifiques. Menuiserie alu double vitrage avec volets motorisés.


Les informations sur les risques auxquels ce bien est exposé sont disponibles sur le site Géorisques

Caractéristiques de ce bien

Activités

  • Type de transaction Local commercial

Agencement

  • Superficie m2 110 m²
  • Zone(s) de chalandise Route d'Espagne

Equipements

  • Chauffage individuel : convecteur (electrique)

Secteur

  • Code postal 31120
  • Ville Portet-sur-Garonne

Diagnostics & compléments

  • Risques natures et techniques OUI

Composition du bien

Etage 3

  • bureau

Rez-de-chaussée

  • accueil

Diagnostics énergétiques

DPE
GES

Montant estimé des dépenses annuelles d'énergie de ce logement pour un usage standard est compris entre 1 070 € et 1 510 € . 2021 étant l'année de référence des prix de l'énergie utilisés pour établir cette estimation.

Informations financières

Autour du bien

  • Commerces et santé
  • Loisirs
  • Ecoles
  • Transports
  • Pratique

Calcul des mensualités

* Champs obligatoires