

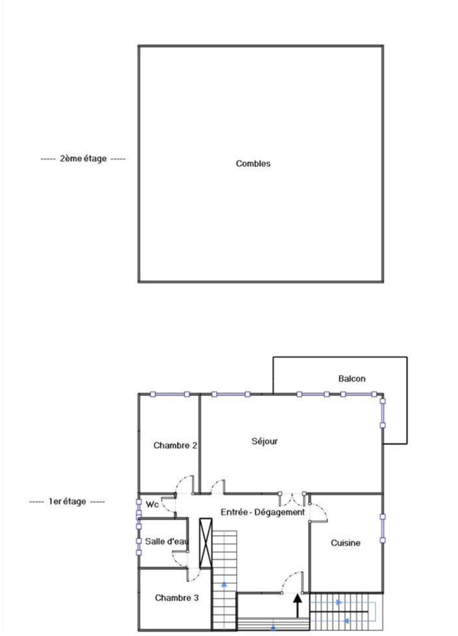
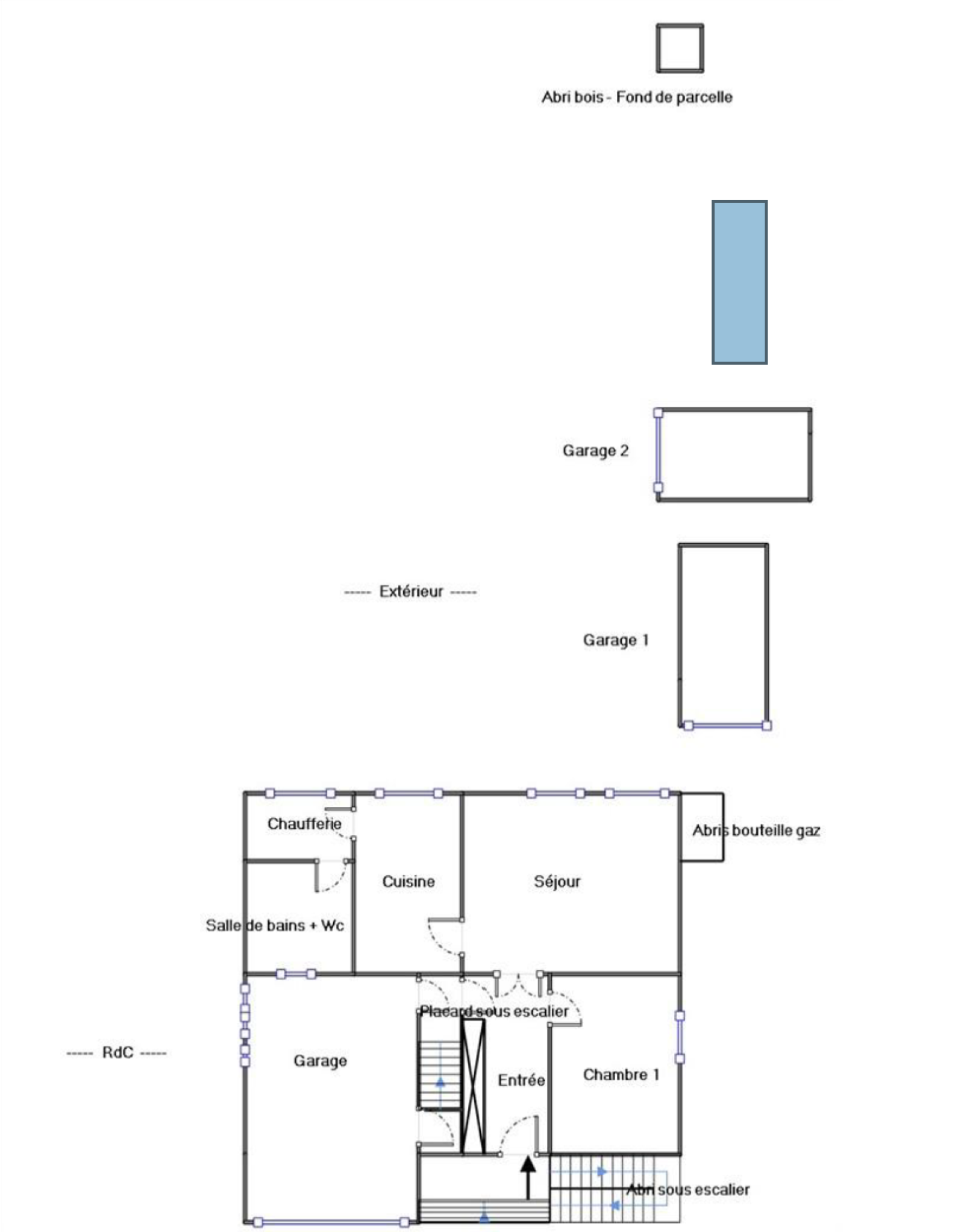
Maison 5 pièce(s) 3 chambre(s) 138 m²
Portet-sur-Garonne (31120)A propos de ce bien
Caractéristiques de ce bien
- Surface 138 m²
- terrain 2 900 m²
- 3 chambre(s)
- 1 salle(s) de bain
- 1 salle(s) d'eau
- construit en 1974
- Chauffage central : chaudière (fioul)
- 3 garage(s)
- 4 parking(s)
- exposition Sud
- 2 niveau(x)
- vue Champêtre et fleuve
- balcon
- terrasse
- arboré
- piscinable
Diagnostics énergétiques
Logement à consommation énergétique excessive : classe G
Montant estimé des dépenses annuelles d'énergie pour un usage standard est compris entre 6 620 € et 8 990 € . Prix moyens des énergies indexés sur les années 2021, 2022 et 2023 (abonnements compris).
Informations financières
Autour du bien
-
Commerces et santé
-
Loisirs
-
Ecoles
-
Transports
-
Pratique