0
fr
PAWELSKI Laurent Négociateur
Télécharger la fiche
Exclusivité

Autre 110 m²

Portet-sur-Garonne (31120)
300 000 € Référence 85590342

A propos de ce bien

Belle visibilité pour ces locaux professionnels de plain-pied sur une parcelle de 890 m2. Le bien peut être adapté pour une profession libérale ou commerciale. Egalement possibilité de dépôt moyennant des travaux spécifiques. Menuiserie alu double vitrage avec volets motorisés.

Caractéristiques de ce bien

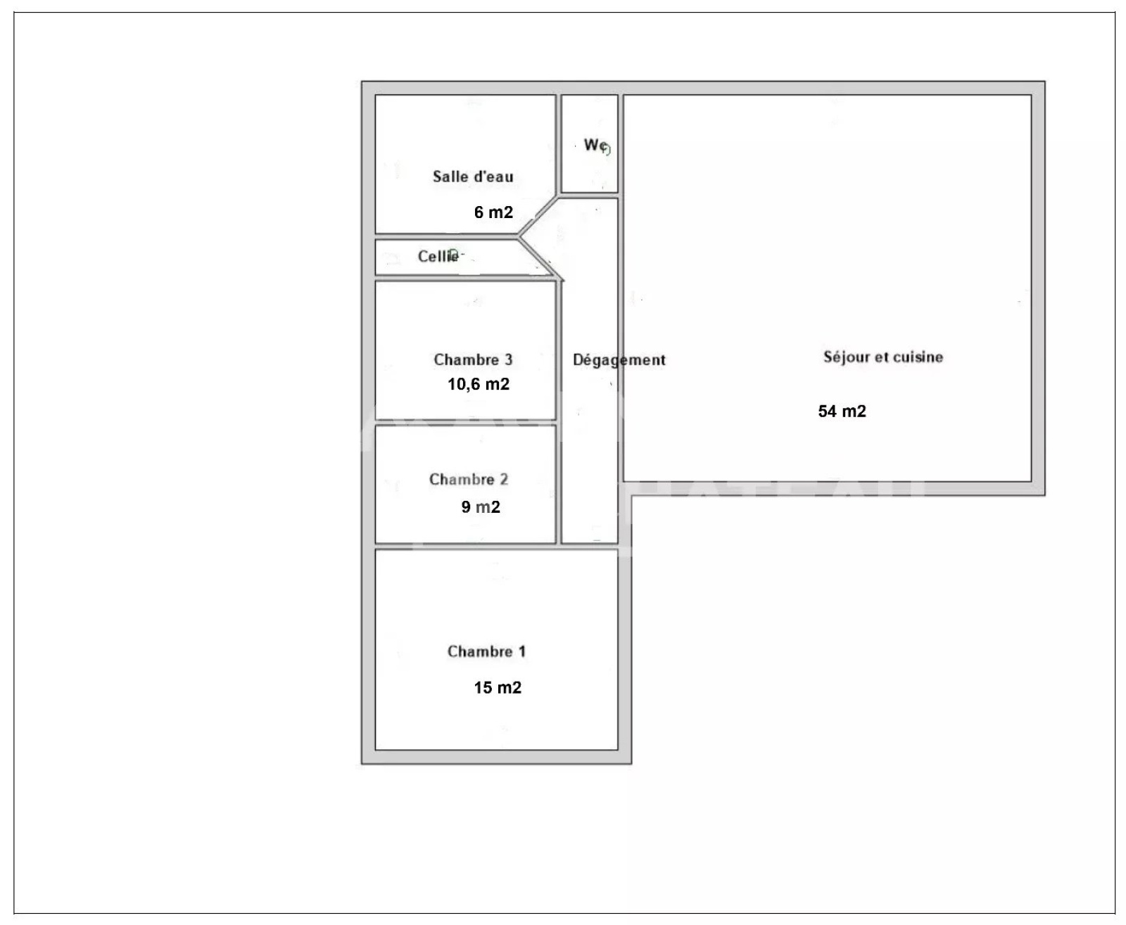
  • Surface 110 m²
  • terrain 889 m²
  • 1 salle(s) d'eau
  • Chauffage individuel : convecteur (electrique)
  • exposition Nord

Diagnostics énergétiques

DPE
GES
DPE en cours

Informations financières

Prix de vente 300 000 € Les honoraires d'agence seront intégralement à la charge du vendeur

Autour du bien

  • Commerces et santé
  • Loisirs
  • Ecoles
  • Transports
  • Pratique

Calcul des mensualités

* Champs obligatoires